Nhu cầu thiết kế thi công nhà xưởng công nghiệp hiện nay ngày càng lớn. Đối với những người lần đầu đầu tư để mở nhà xưởng thì việc nắm bắt hết được toàn bộ quy trình này là không nhiều. Thi công nhà kho xưởng khác hoàn toàn so với việc thi công xây dựng một ngôi nhà.
Vậy quy trình thiết kế thi công nhà xưởng gồm những giai đoạn nào?
Bài viết này sẽ chia sẻ toàn bộ quá trình thiết kế, thi công nhà xưởng từ A đến Z, kèm với hình ảnh minh họa trực quan giúp bạn đọc dễ hình dung.
Trước khi đi chi tiết vào từng giai đoạn, thì sau khi xin được giấy phép đầu từ thì quy trình xây dựng nhà xưởng có thể được chia thành 3 giai đoạn chính như sau:
1. Thiết kế nhà xưởng
2. Chuẩn bị thi công nhà xưởng
3. Thi công nhà xưởng
Thiết kế nhà xưởng
Sau khi tiếp nhận hồ sơ đơn vị thi công sẽ đến khảo sát địa điểm, mặt bằng nơi thi công dự án và đưa ra phương án thi công thiết kế về công nghệ, cơ sở hạ tầng kỹ thuật để có phương án thi công thiết kế nhà xưởng hợp lý hơn.
Có yếu tố cần quan tâm bao gồm:
- Quy định về môi trường theo quy định của khu công nghiệp hay các cụm công nghiệp
- Quy định phòng cháy chữa cháy của khu công nghiệp hay các cụm công nghiệp
- Yếu tố địa chất tại khu vực thi công xây dựng nhà xưởng.
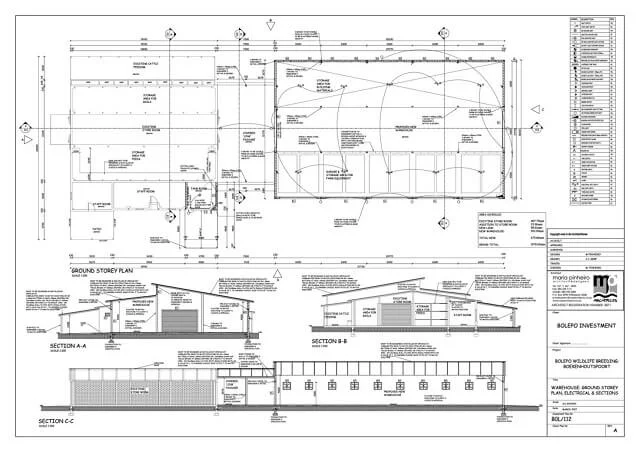
Thiết kế bản vẽ tổng quan
Sau khi trao đổi và hiểu rõ nhu cầu của chủ đầu tư, cùng với điều kiện thực tế tại vị trí đặt nhà xưởng, các kiến trúc sư và kỹ sư sẽ tiến hành vẽ những bản vẽ sau
- Bản vẽ mặt bằng quy hoạch tổng thể
- Bản vẽ từng hạng mục
- Bản vẽ phối cảnh 3D
Từ những bản vẽ này chủ đầu tư sẽ có cái nhìn tổng quan nhất về toàn bộ dự án. Bản vẽ nhà xưởng giai đoạn này cần thể hiện rõ các có mạng mục quan trọng như
- Chỉ giới xây dựng
- Đường nội bộ
- Khuôn viên bên ngoài
- Phòng cháy, thoát hiểm
- Những thiết bị nhà xưởng kho cần thiết

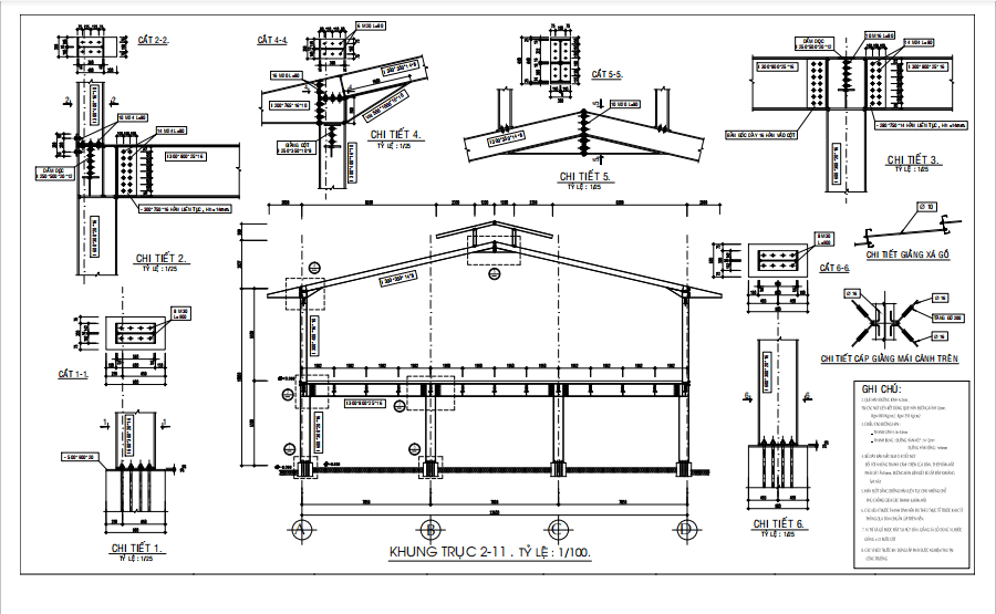
Thiết kế bản vẽ thi công
Bản vẽ thi công sẽ thể hiện chi tiết tất cả các hạng mục xây dựng, từng chi tiết cấu tạo về kiến trúc như
- Kết cấu phần móng
- Bản vẽ khung thép tiền chế
- Các nút liên kết
- Quy cách vật liệu
- Các bản vẽ M&E
- Phòng cháy cho từng hạng mục cụ thể
Trong giai đoạn này, chủ đầu tư đồng thời cũng xin cấp phép xây dựng, cấp phép PCCC.
Bản vẽ thi công và bảng tiến độ thi công ( BOQ) sẽ là căn cứ để bàn giao và nghiệm thu toàn bộ công trình hoàn thành sau này.

Chuẩn bị thi công nhà xưởng
Quá trình chuẩn bị trước khi thi công phải được làm cẩn thận và càng chi tiết càng tốt. Vì mỗi một phát sinh đều ảnh hưởng đến tiến độ và chất lượng chung của dự án.
Gia công cấu kiện
Các kỹ sư triển khai bản vẽ chi tiết các cây thép, từng cấu kiện. Đồng thời lên kế hoạch và đặt hàng thép hình, thép tấm chờ về nhà máy. Tiến hành kiểm tra và đánh giá chất lượng thép, xuất xứ của vật tư đúng như hợp đồng mua. Sau khi tất cả được kiểm tra và không có vấn đề gì ta tiến hành công tác gia công.

Lên phương án thi công
Để đảm bảo cho quá trình thi công xây dựng nhà xưởng được diễn đúng tiến độ và được quản lý chặt chẽ, Nhà thầu thi công cần lập
- Bản vẽ tổ chức thi công
- Bảng tiến độ thi công chi tiết
Bản vẽ tổ chức thi công cần thể hiện rõ các vị trí như đường công vụ, bãi tập kết và gia công vật liệu, lán trại công nhân, phòng điều hành…
Bảng tiến độ thi công cần thể hiện rõ từng đầu việc và hạng mục cụ thể, bao gồm cả các giai đoạn chuẩn bị mặt bằng, lán trại tạm, thời gian đấu nối điện nước, các giai đoạn thi công xây dựng và nghiệm thu, cả các công tác vệ sinh, bàn giao sau khi kết thúc công việc thi công xây dựng.
Thi công nhà xưởng
Bước 1: Thi công nền móng
Thi công nền móng là bước đầu tiền, cũng là bước quan trọng nhất, tạo tiền đề cho những bước tiếp theo. Tùy tình hình địa chất thực tế và yêu cầu của nhà xưởng, có hai giải pháp là móng cọc hay móng đơn.
Đặc biệt trong giai đoạn này trước khi đổ bê tông móng cần tiến hành chôn các bu lông trong móng để sau này ghép với cột thép.
Sau công tác đổ bê tông móng, nhà thầu đổ đất và lu lèn đất nền đảm bảo độ chặt, chiều dày như bản thiết kế.
Tiến hàng dựng cốt thép và đổ bê tông cho nền. Sau khi đổ bê tông cần tiến hành công tác bảo dưỡng đúng quy định để tránh nứt sàn và thấm dột trên sàn.

Bước 2: Thi công khung thép
Đa số nhà xưởng hiện nay có phần khung thường được thi công bằng thép. Khung thép tiền chế này đều được kiểm soát chặt chẽ về chất lượng trong khâu chuẩn bị thi công. Phương án lắp ghép khung thép cho nhà xưởng diễn ra như sau:
- Lắp dựng khung thép: Các bộ phận của khu thép sẽ được kết nối với nhau bằng bu lông và sử dụng cẩu nâng để lắp ghép.
- Lắp xà gồ và cáp giằng: Giúp cố định ngoài mặt phẳng khung, tăng cường tính ổn định của khung thép và nâng đỡ tấm lợp.

Bước 3: Thi công vỏ bao che
Hệ thống vỏ bao che xung quanh nhà xưởng gồm có phần tường và mái. Tiến hành xây tường bao che, thi công mái tôn cho nhà xưởng theo hồ sơ kỹ thuật trước đó.

Bước 4: Thi công cơ sở hạ tầng
Cơ sở hạ tầng nhà xưởng rất quan trọng, nó ảnh hưởng nhiều đến sự vận hành về sau. Các hạ tầng cơ bản mà mọi nhà xưởng cần có bao gồm:
- Đường giao thông nội bộ
- Ống cấp thoát nước
Các công việc cần làm như sau:
- Lắp đặt ống nước
- Lu nền đường, đá nền đường
- Bảo dưỡng bê tông nền đường và cắt ron chống nứt

Bước 5: Thi công hệ thống kỹ thuật
Khi thi công nhà xưởng thì hệ thống kỹ thuật là phần không thể bỏ qua. Hệ thống này sẽ bao gồm các hệ thống như:
- Phòng cháy chữa cháy
- Thông tin liên lạc; điện nước
- Thiết nhà xưởng: Sàn nâng thủy lực, Cầu lên container, Bàn nâng thủy lực

Bước 6: Hoàn thiện
Đây là khâu cuối cùng trong quá trình thi công nhà xưởng. Ở bước này cần phải làm các việc sau:
- Đóng trần thạch cho khu nhà văn phòng.
- Kẻ vạch: giúp phân làn giao thông, hàng hóa trong xưởng.
- Trang trí ngoại cảnh bên ngoài nhà xưởng như trồng cây xanh, cỏ.
- Tiến hành vệ sinh toàn bộ nhà xưởng trước khi bàn giao.

Bước 7: Nghiệm thu và bàn giao
Nhà xưởng được làm vệ sinh tổng thể trước khi bàn giao cho chủ đầu tư. Tiến hành nghiệm thu và bàn giao công trình hoàn thiện.
Kết luận
Quy trình thiết kế, thi công xây dựng nhà xưởng bao gồm rất nhiều bước khác nhau. Từ thi công nền móng, lắp dựng khung thép, vỏ bao che xung quanh, cho tới hoàn thiện nhà xưởng, bố trí ngoại cảnh.
Công tác quan trọng nhất là lựa chọn và lắp đặt những thiết bị nhà xưởng. Những thiết bị này giúp quá trình vận hành nhà xưởng trở nên dễ dàng hơn, giúp quá trình xuất hàng nhanh chóng. Nhà xưởng của bạn sẽ cung ứng được nhiều sản phẩm hơn ra thị trường.
Nếu bạn là chủ đầu tư xây dựng nhà xưởng , bạn nên đầu tư thêm những thiết bị nhà xưởng như Sàn nâng thủy lực, Cầu lên container, Bàn nâng thủy lực. Vì đây là sự đầu tư dài hạn, nâng cao năng lực cung ứng của nhà xưởng.
———————————–
CÔNG TY TNHH LEVELER
Địa chỉ: Tổ dân phố Thu Lỗ, Trung Thành, Phổ Yên, Thái Nguyên.
Tel: 0982.525.883 (Mr. Thuc)
Email: Leveler.vn@gmail.com
Website: https://leveler.vn/