Trong bối cảnh công nghiệp hóa, hiện đại hóa, việc vận chuyển hàng hóa giữa các tầng trong nhà máy, kho xưởng hay các công trình xây dựng đòi hỏi sự hỗ trợ của các thiết bị nâng hạ chuyên dụng. Một trong những thiết bị được sử dụng phổ biến hiện nay là thang nâng hàng thủy lực. Vậy thang nâng hàng thủy lực là gì và có những loại thang nâng nào trên thị trường? Bài viết này sẽ giúp bạn hiểu rõ hơn về khái niệm, phân loại các loại thang nâng hàng.
1. Thang nâng hàng thuỷ lực là gì?
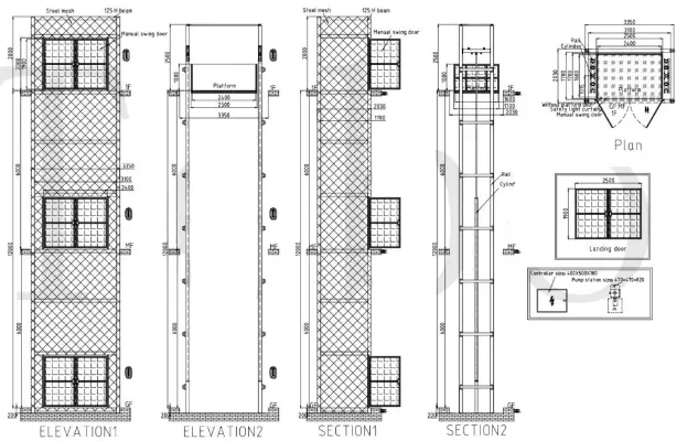
Thang nâng hàng thủy lực là thiết bị được sử dụng để nâng hạ, vận chuyển hàng hóa giữa các tầng trong các kho xưởng, công trường xây dựng hoặc các tòa nhà có nhu cầu vận chuyển hàng hóa lớn. Thiết bị này hoạt động dựa trên nguyên lý thủy lực, sử dụng áp lực chất lỏng (thường là dầu) để tạo lực nâng, giúp thang di chuyển lên xuống một cách êm ái, ổn định.
Thang nâng hàng thủy lực được thiết kế đặc biệt để phù hợp với các không gian có mặt bằng hẹp, chiều cao hạn chế hoặc các công trình đã hoàn thiện mà không thể đào hố thang. Ngoài ra, thang còn được gọi bằng nhiều tên khác nhau như thang nâng trong nhà, thang máy chở hàng, thang tải hàng hay thang máy nâng hàng công nghiệp

2. Cấu tạo của thang nâng hàng thủy lực
Thang hàng thủy lực bao gồm các bộ phận chính sau:
- Hệ thống cơ khí: Gồm khung thang, cabin chở hàng, các bộ phận liên quan đến việc di chuyển thang.
- Hệ thống thủy lực: Bao gồm xi lanh thủy lực, bơm dầu và các đường ống dẫn dầu. Hệ thống này tạo ra lực nâng giúp thang di chuyển.
- Hệ thống điện: Gồm bảng điều khiển, các cảm biến, hệ thống an toàn. Hệ thống điện giúp điều khiển hoạt động của thang đảm bảo an toàn trong quá trình vận hành.
Việc hiểu rõ cấu tạo của thang tời hàng thủy lực giúp người sử dụng kỹ thuật viên dễ dàng hơn trong việc vận hành, bảo trì và sửa chữa thiết bị.
Nguyên lý hoạt động:
Khi bơm thủy lực hoạt động, dầu được đẩy vào xi-lanh, làm piston di chuyển, nâng bàn nâng lên. Khi giảm áp suất, piston hạ xuống, bàn nâng trở về vị trí ban đầu.
3. Danh sách các loại thang tời hàng thuỷ lực
Dưới đây là danh sách các loại thang nâng mà chúng tôi đang cung cấp. Bạn cần loại thang nâng có thể nâng được bao nhiêu Kilogram hàng hóa? Hãy lựa chọn và liên hệ với công ty LEVELER.
Các loại thang nâng có kèm theo các phụ kiện, thiết bị bổ sung. Ngoài thiết kế cơ bản của thang nâng thủy lực nâng hàng thì bạn cũng có thể lựa chọn thêm cho mình những tính năng phụ, các phụ kiện, điều kiện che chắn khác kèm theo.
Quây lưới che phủ toàn bộ thang nâng

- Toàn bộ thang được che phủ bởi thép lưới
- Giúp đảm bảo an toàn tuyệt đối cho cong người và hàng hóa.
Che phủ lưới toàn bộ có cửa cuốn

- Thang dược che phủ hoàn toàn và có cánh cửa cuốn hiện đại
- Nâng tầm an toàn cho thang hàng và tiện lợi cho sử dụng.
Tìm hiểu thêm >>>
Cửa trượt đóng mở tự động

- Cửa trự tự động có phủ lưới che an toàn.
- Sự an toàn cho quá trình được tự động hóa tối đa với phương án.
Thang nâng hàng tốc độ cao

- Bạn cần thang tời hàng của bạn chạy nhanh hơn?
- Lựa chọn cho mình loại thang nâng hàng tốc độ cao.
Cabin có thêm bàn cân điện tử

- Lựa chọn lắp đặt thêm cân điện tử cho thang nâng hàng
- Một ưu tiên tốt cho việc sử dụng đúng tải trọng quy định.
Liên hệ LEVELER để được tư vấn phù hợp với nhu cầu của bạn!
- Chúng tôi có thể thiết kế riêng giúp bạn.
- Hãy liên hệ với chúng tôi và đưa ra bài toán cho thang nâng hàng mà bạn đang cần.
- Chúng tôi luôn sẵn sàng hỗ trợ 24/7 cho bạn.
4. Kích thước các mẫu thang tời hàng hiện nay
| Model | Tải trọng (kg) | Chiều cao nâng (mm) | Kích thước cabin (mm) |
| LTNH05-2 | 500 | 2000 | 1300 * 1300 |
| LTNH1-27 | 1000 | 2700 | 1300 * 1600 |
| LTNH2-3 | 2000 | 3000 | 1500 * 2000 |
| LTNH3-3 | 3000 | 3000 | 2000 * 2500 |
| LTNH5-5 | 5000 | 5000 | 2500 * 3000 |
5. Hình ảnh thực tế các sản phẩm Thang Nâng Hàng






6. Bảng giá Thang Nâng Hàng, thang hàng thủy lực hiện nay
| Model | Tải trọng (kg) | Chiều cao nâng (mm) | Kích thước cabin (mm) | Giá thành (VNĐ) |
| LTNH05-2 | 500 | 2000 | 1300 * 1300 | 99.000.000 |
| LTNH1-27 | 1000 | 2700 | 1300 * 1600 | 155.000.000 |
| LTNH2-3 | 2000 | 3000 | 1500 * 2000 | 190.000.000 |
| LTNH3-3 | 3000 | 3000 | 2000 * 2500 | 240.000.000 |
| LTNH5-5 | 5000 | 5000 | 2500 * 3000 | 365.000.000 |
7. Hướng dẫn an toàn khi sử dụng sản phẩm
- Chỉ những nhân viên được đào tạo và có thẩm quyền mới được vận hành thiết bị.
- Thang tời hàng không nên dùng để nâng người.
- Không vượt quá Tải trọng làm việc an toàn của sàn nâng.
- Đảm bảo rằng tải trọng được tập trung vào sàn nâng.
- Nếu hàng hóa là di động, hãy cố định hàng hóa ở vị trí cố định trước khi vận hành thang máy.
- Giữ toàn bộ tải trọng trong chu vi của sàn trong quá trình vận hành thang máy.
- Duy trì các khu vực trống bên dưới sàn và xung quanh chu vi của thang máy khi thang máy đang chuyển động.
- Không bao giờ làm việc dưới thang máy mà không có (các) thiết bị bảo trì tại chỗ.

8. Hướng dẫn bảo trì thang máy chở hàng
1. Kiểm tra hàng ngày
Kiểm tra hàng ngày với thang nâng để tìm ra sự cố hoặc lỗi trên thang nâng hàng. Trước khi vận hành, hãy kiểm tra thang nâng theo các điểm sau.
THẬN TRỌNG! Không sử dụng xe nâng hàng nếu phát hiện thấy bất kỳ trục trặc hoặc lỗi nào.
- Kiểm tra vết trầy xước, uốn cong hay nứt trên thang nâng.
- Kiểm tra chuyển động trơn tru của hệ thống.
- Kiểm tra bảng điều khiển đảm bảo hoạt động tốt.
- Kiểm tra xem có rò rỉ dầu thủy lực không.
- Kiểm tra bộ dây xích cáp kéo của thang nâng.
2. Bảng checklist bảo trì thang máy chở hàng
| Nội dung kiểm tra | Tiêu chuẩn kiểm tra |
| Mỗi 1 tháng | |
| Công tắc giới hạn cho tất cả các tầng | Chạy bình thường |
| Khóa bảo vệ cho cửa các tầng | Chạy bình thường |
| Động cơ bơm thủy lực | Chạy bình thường |
| Đèn cảnh báo | Chạy bình thường |
| Dây xích | Không lỏng lẻo, không có hư hỏng |
| Dây cáp | Không có hư hỏng |
| Thanh ray dẫn hướng | Không biến dạng |
| Khung lồng cabin | Không có biến dạng |
| Dây điện | Không có hư hại |
| Mỗi 6 tháng | |
| Kiểm tra mức dầu của thùng dầu | Giữ sạch sẽ và không rò rỉ dầu |
| Kiểm tra độ sạch của bộ lọc dầu | Giữ sạch sẽ |
| Vặn chặt lại tất cả các bộ phận kết nối | Bắt chặt |
| Kiểm tra độ mòn của ống dẫn dầu áp lực | Thay cái mới nếu mòn quá |
| Kiểm tra xi lanh thủy lực | Giữ không rò rỉ dầu |
| Các bộ phận chính siết chặt lại | Bắt chặt |
| Kiểm tra chức năng của các công tắc | Chạy bình thường |
| Kiểm tra toàn bộ trạng thái làm việc của thang | Chạy bình thường |
| Cứ 1 năm một lần | |
| Kiểm tra độ mòn của tất cả các con trượt | Không có thiệt hại |
| Thay dầu thủy lực | Tích lũy làm việc 1000 giờ |
| Kiểm tra rò rỉ dầu | Không rò rỉ dầu |
Bảng kiểm tra bảo trì thang nâng hàng tiêu chuẩn tại LEVELER. Chúng tôi cung cấp phục vụ khách hàng sử dụng thang tời hàng an toàn hơn, thuận lợi hơn.
Lời kết
Xin cảm ơn quý vị và khách hàng đã quan tâm tới Công ty LEVELER chúng tôi cho sự lựa chọn các sản phẩm THANG NÂNG HÀNG nói riêng và các sản phẩm nâng hạ, sản phẩm kho hàng nói chung khác.
Tại đây tác giả đã chỉ rõ ra tất cả các thông tin về một sản phẩm Thang tời hàng, cầu xe nâng, những thông tin chi tiết nhất mà quý khách hàng có thể có khi tìm mua Bàn nâng hạ hàng hóa, thang nâng hàng vận chuyển hàng hóa.
Qua bài viết này quý khách hàng có thể tự tin hiểu rõ thang nâng hàng thuỷ lực là gì, hoặc có thể tự tin đặt mua ngay một loại thang nâng phù hợp với nhu cầu công việc, nhu cầu sử dụng cho doanh nghiệp của mình.
Quý khách hàng có thể đặt mua ngay Thang Hàng thuỷ lực tại công ty LEVELER chúng tôi theo thông tin liên hệ dưới đây.
CÔNG TY TNHH LEVELER
Holine: 0982.525.883
Email: Leveler.vn@gmail.com
Website: https://leveler.vn/


