Mô tả
Hàng Rào Lưới Thép Di Động Có Bánh Xe là loại hàng rào không cố định một chỗ, được thiết kế thêm bánh xe chuyên dụng cho môi trường như nhà xưởng, kho bãi, phân loại hàng hóa, hậu cần và các khu vực cần phân vùng nhanh chóng.
Với khung thép chắc chắn, kết hợp lưới bảo vệ, sản phẩm này cho phép tạo thành hàng rào chắn hoặc phân chia không gian dễ dàng, đồng thời có thể di chuyển, tái sử dụng hoặc mở rộng khi cần. Sản phẩm phù hợp cho việc rào khu vực kho hàng, bảo vệ nhà xưởng, khu phân loại, khu lưu trữ và các hoạt động logistics liên quan.
Tại Leveler – chuyên cung cấp các loại hàng rào di động có thiết kế theo yêu cầu.

1. Cấu tạo
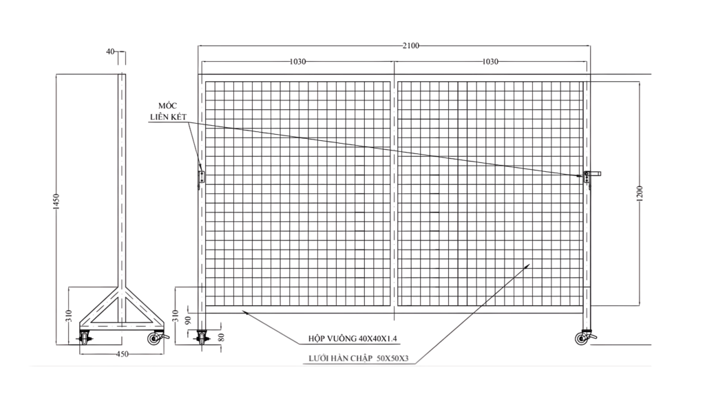
- Hộp thép làm khung cố định, đảm bảo độ vững chắc.
- Thanh chắn, lưới thép hàn cố định chắc chắn, thẩm mỹ không gồ ghề
- Sơn mạ kẽm hoặc sơn tĩnh điện theo yêu cầu khách hàng.
- Bánh xe để thuận tiện di chuyển, xếp đặt linh hoạt.
- Thiết kế mô-đun, dễ lắp ghép, tháo gỡ và vận chuyển, phù hợp điều kiện chuyển đổi không gian nhanh

2. Ưu điểm
- Hộp thép làm khung cố định, đảm bảo độ vững chắc.
- Thanh chắn, lưới thép hàn cố định chắc chắn, thẩm mỹ không gồ ghề
- Sơn mạ kẽm hoặc sơn tĩnh điện theo yêu cầu khách hàng.
- Bánh xe để thuận tiện di chuyển, xếp đặt linh hoạt.
- Thiết kế mô-đun, dễ lắp ghép, tháo gỡ và vận chuyển, phù hợp điều kiện chuyển đổi không gian nhanh

3. Thông số kỹ thuật
| Thông số | Chi tiết |
| Kích thước | 1m2*1m (Tùy chỉnh) |
| Phụ kiện thêm | Bánh xe, phụ kiện nối góc, phụ kiện kết nối |
| Lưới | 50*50mm |
| Màu sắc | Vàng, xanh, đen,… (Tùy chỉnh) |
| Chất liệu | Thép được phun sơn tĩnh điện/mạ kẽm |
| Xuất xứ | Việt Nam |
Thông số kỹ thuật mang tính chất minh họa, liên hệ ngay 098 252 58 83 để nhận tư vấn trực tiếp.
4. Ứng dụng linh hoạt
- Hàng rào bảo vệ nhà xưởng, khu vực máy móc, robot, thiết bị tự động, nơi cần ngăn cách an toàn với người vận hành
- Hàng rào di động tại công trường, sự kiện, khu vực tạm thời cần phân chia và bảo vệ nhanh.
- Phân vùng khu vực trong nhà máy: phân khu nguyên vật liệu, khu sản xuất, khu thành phẩm.
- Bảo vệ khu vực kho hàng, phân loại hàng hóa, hậu cần trong nhà xưởng hoặc ngoài trời.

5. Leveler – Địa chỉ cung cấp Hàng Rào Lưới Thép Di Động Có Bánh Xe uy tín, chất lượng
Để không gian nhà xưởng, nhà máy hay các khu vực được phân chia gọn gàng, tăng thẩm mỹ mà có thể di chuyển linh động mọi nơi không có gì là khó. Leveler sẽ mang đến giải pháp Hàng Rào Lưới Thép Di Động Có Bánh Xe đáp ứng hết những nhu cầu của khách hàng.
Leveler – Đơn vị chuyên cung cấp các loại hàng rào di động chất lượng số 1 Việt Nam. Ngoài ra, chúng tôi cung cấp một số loại sản phẩm Hàng rào công nghiệp phù hợp với xưởng, nhà máy của bạn.
Liên hệ ngay Leveler để được tư vấn và báo giá chi tiết:
Hotline: 0961 564 492
Email: Leveler.vn@gmail.com
Website: https://leveler.vn/











Đánh giá
Chưa có đánh giá nào.